Чертежи Аппарат С Мешалкой
Объем аппарата 3 м3 Диаметр аппарата 1200 мм Диаметр рубашки 1400 мм Чертежи: общий вид аппарата. Чертеж емкостной аппарат с рамной мешалкой d=1,6 м, v=3,2 м3(реактор нуклеофильного замещения. Oct 25, 2014 - Кубанский государственный технологический университет. Кафедра технологического оборудования и систем жизнеобеспечения. Курсовой проект по дисциплине 'расчет и конструирование оборудования пищевой промышленности' На тему 'Аппарат с мешалкой' Краснодар, 2014.
Описание Цельносварные аппараты с эллиптическими днищами, крышками, мешалками и рубашкой из полутруб применяются для проведения различных химико-технологических процессов, например, перемешивания, гомогенизации, суспензирования, эмульгирования, ферментирования, сбраживания, массо- и теплообмена, а также измельчения веществ с массовой долей твердой фазой до 30%. В качестве рабочих сред могут выступать как нейтральные жидкие продукты и газожидкостные среды, однофазные и многофазные составы, так и агрессивные, вредные, токсичные, взрыво- и пожароопасные вещества. В соответствии с ГОСТ 'Аппараты с механическими перемешивающими устройствами. Общие технические условия' к продукту предъявляется ряд требований:. плотность не должна быть более 2000 кг/м 3.
динамическая вязкость не более 200 Па х с. температура эксплуатации - от -40ºС до +350ºС Конструктивные особенности аппаратов с мешалками и рубашкой из полутруб Корпус представляет собой цилиндрическую обечайку и неразъемные эллиптические днище и крышку. Они устанавливаются только наземно в вертикальном положении на опоры. В них используются эллиптические днища, так как избыточное давление может достигать 6,3 МПа. Их также можно эксплуатировать под налив и вакуум - тогда остаточное давление не должно быть ниже 665 Па.
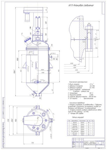
В корпусе предусматриваются штуцеры разного диаметра, через которые осуществляется налив/слив, техническое обслуживание и ремонт (чистка, продувка) и наполнение теплоносителем. В штуцеры устанавливается необходимое оборудование для безопасной работы - предохранительный клапан, манометр, термометр.
Перемешивающие устройства устанавливаются строго вертикально на стойку. Конструкция и тип мешалки подбирается в зависимости от плотности рабочей среды, состава, назначения аппарата, температурного режима. Так, специалисты Саратовского резервуарного завода предлагают следующие виды мешалок:. лопастные (трехлопастные, шестилопастные), зубчатые, турбинные, рамные - для продуктов с вязкостью менее 50 Па х с. шнековые, ленточные (со скребками) - для сред с вязкостью более 50 Па х с Место стыковки вала мешалки и крышки должно быть уплотнено для сохранения герметичности. Для этого могут использоваться торцовые или сальниковые уплотнения или гидрозатвор. Для агрессивных сред (1, 2, 3 классов опасности) наиболее подходящими являются торцовые (двойные) уплотнения.
Для нейтральных (4 класса опасности) - одинарные торцовые, сальниковые или гидрозатвор. Подбор перемешивающего устройства и уплотнения рассчитывает отдел проектирования на основе исходных данных, предоставленных в или Техническом задании на изготовление. Для Вашего удобства приводим условное обозначение для заказа. Иногда необходимо подогревать или охлаждать рабочий продукт. Для этого к стенке с наружной стороны может привариваться рубашка из полутруб, которая заполняется теплоносителем (водяной пар, вода, конденсат, тосол и др.). Их особенностью является то, что давление в них может достигать более 1,1 МПа. Рубашка из полутруб применяется в тех случаях, когда для обогрева поток теплоносителя должен достичь высокую скорость.
Данная теплообменная система представляет собой змеевик, выполненный в виде полутруб. Для циркуляции теплоносителя под высоким давлением и скоростью могут использоваться рубашки из труб. Сравнительное изображение) Производство неразъемных (цельносварных) аппаратов с эллиптическим днищем и крышкой, механическим перемешивающим устройством и рубашкой из труб и полутруб Сертификаты и иные разрешительные документы на проектирование, изготовление и монтаж аппаратов с перемешивающими устройствами Вы можете посмотреть. Специалисты нашего Завода изготавливают перемешивающее оборудование как по типовым чертежам, так и по индивидуальному заказу.
Типовой чертеж аппарата с мешалкой и рубашкой из полутруб. Обозначение Назначение А вход продукта Б резервный В резервный Г для предохранительного клапана Д для передавливания Е резервный Ж для манометра И для термометра Л люк Н, Н1 вход и выход теплоносителя Н2, Н3 вход и выход теплоносителя О выходапродукта П перелив продукта Для изготовления мы применяем сталь марок Ст3сп (углеродистая обыкновенного качества) или 12Х18Н10Т (нержавеющая титаносодержащая аустенитного класса). Возможно производство из других марок стали, отвечающих требованиям к прочности, ударной вязкости и другим параметрам. Для антикоррозионной защиты внутреннюю и внешнюю поверхности стенок покрывают защитными составами, грунтами, эмалью, окрашивают в необходимый цвет (выбирает Заказчик). Как купить аппарат с мешалкой и рубашкой из труб или полутруб на Саратовском резервуарном заводе? Если Вас интересует стоимость аппаратов с мешалкой и рубашкой из труб/полутруб нашего производства, Вы можете:. позвонить по телефону 8-800-555-9480.


Чертежи Аппарат С Мешалкой Купить
скачать, заполнить для заказа аппарата с мешалкой и прислать на электронную почту. нажать кнопку ', заполнить контактные данные, и наши специалисты свяжутся с Вами в ближайшее время. в письме на электронную почту указать условное обозначение необходимого аппарата.